Back to Search results

Asylum Tavern, Peckham

Peckham, SE15 2RL

Your investment

£15,750

Agreement Type

Long Term Agreement (5 Year Tenancy)
  • Zero business rates
  • Internal and external refurbishment
  • Long established pub business

The Asylum has been a mainstay of the local pub scene for many years, offering great potential for the right licensee to build on its established presence. Any prospective licensee will need a strong vision for the pub’s future and the ability to see beyond its current setup and décor. A successful relaunch will require close collaboration and a shared refurbishment plan, with investment contributions agreed by both parties before moving forward. Due to the nature of the opportunity and the challenges involved, the Asylum is unlikely to be suitable for a first-time licensee, as experience in managing and repositioning pubs will be a key advantage. The concept offers flexibility, it could remain a traditional pub with a twist or, with the right plan, evolve into something more contemporary and distinctive. Applicants will be expected to visit the pub at least twice, ideally at different trading times and days, and spend time in the local area to understand the trading environment and customer base. To succeed, the new licensee will need to align the offer with the local demographic, broadening the customer base and re-engaging with the surrounding community. This represents a challenging but rewarding turnaround opportunity, with full support provided for the right applicant. The successful licensee will focus on creating a welcoming, community-led atmosphere that attracts both local residents and passing trade, while offering something different from the area’s more traditional, value led venues.

The refurbishment is subject to full Board approval. All designs are draft and indicative only, intended to showcase the potential of the pub. The refurbishment will be refined and personalised once a long-term licensee is secured, incorporating their vision for the look and feel of the business.

The Asylum Tavern is a prominent three-storey corner public house on Asylum Road in Peckham, just off the Old Kent Road and around three miles south of central London. It’s well placed in a high density residential area, offering strong local trade and good passing footfall. Queens Road Peckham Station is just a five-minute walk away, offering convenient Overground and Southern Rail connections to London Bridge and beyond. Additional excellent transport links are available via Peckham Rye Station and the numerous bus routes along Old Kent Road. The area has undergone extensive regeneration and residential development, contributing to a strengthened and more vibrant local demographic.

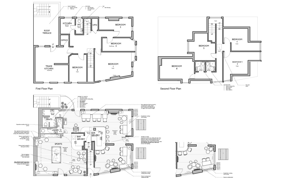
Pub Layout

Upon entering the pub, guests are welcomed into the main bar area, which offers seating on two sides. To the left, there is a snug-style space featuring benched seating, providing a more intimate area for smaller groups. Towards the rear and to the left-hand side is a dedicated pool and darts area, complete with some fixed seating, making it ideal for sports and social gatherings. The pub is arranged as an essentially two-bar operation, allowing flexibility. Television screens are positioned throughout the pub ensuring good visibility for all areas. To the rear, you will find the ladies’ and gents’ toilets, conveniently located for easy access.

The pub has been operated by the same licensee for a number of years, serving a loyal and well established customer base. This long-term stability has created a welcoming and familiar atmosphere, with a strong sense of community and consistent local support. Trading has remained steady under the current licensee, who has chosen to keep the offer simple and traditional. The pub is fully wet-led, with no food provision however there is a small selection of back bar snacks available. This straightforward approach has allowed the business to retain its identity as a classic community local, valued by regulars for its relaxed environment and friendly service.

Private Accommodation

The private accommodation consists of living space, kitchen, 5 bedrooms

Annual Rent: £35,000

Security Deposit: £8,750 or the equivalent of three months’ rent, whichever is greater

Working Capital: £1,000

Stock: £6,000

Fixtures and Fittings: To be confirmed upon valuation –  funding options may be available for the right licensee.

Zero Business Rates* – Based on the draft rating list for April 2026, the Nil Rates Payable is based on small business rates relief being applied for by the licensee and the licensee only occupying one property for commercial purposes.  Please note, this only applies to pubs marked with an Asterix *

Tie: All drinks categories are tied.  For fully funded licensees on long term agreements, we offer free-of-tie options for certain drinks categories in exchange for an annual fee.

For a breakdown on financial information, please refer to the ‘Additional Info’ tab.

Annual Rent – This is our lowest rent figure associated with a Full Tie.  If the tie is reduced the effective rent (via Tie Release Fees) will increase.  Rent is billed and paid for weekly in advance depending on the payment terms agreed). On occasion, our Business Development Manager will discuss a start up rent which is discretionary to an individual pub and can be discussed.

Security Deposit – A security deposit is required when applying for a pub with Admiral.  This will be the greater of £5,000 or three months’ headline rent. The deposit is held on your account and returned when you leave, subject to your final account balance and the condition of the property.  We will also carry out a credit check as part of your application, which may affect the deposit amount required.

Working Capital – This is a recommend amount required which will be used in the day-to-day running of the business.

Stock – This will be valued by an independent valuer on the day you take over the pub. This includes unbranded glassware, unopened bottles, wines, spirits, any unopened / opened kegs and cask ale providing the container is unopened.

Fixtures & Fittings – This includes any item that is bolted to the floor or walls, and a fitting to be any item that is free standing or hung by a nail or hook. This will also include furniture.

Tie: All drinks categories are tied.  For fully funded licensees on long term agreements, we offer free-of-tie options for certain drinks categories in exchange for an annual fee.

Training£350.00 – Before signing a long term agreement, you will be required to attend our 7 Steps to Sales Success training programme.  Held online over two days, you will learn marketing and business strategies that will help you to grow sales in your pub – step-by-step.

Service Charge Cost – £65.86 per week – The Admiral Taverns Premium Maintenance Package will help take care of your compliance and statutory obligations with one simple fee, whilst giving you piece of mind about your boiler and cellar cooling repair and replacement.  This also includes full access to e-learning for you and your staff.

Zero Business Rates* – Based on the draft rating list for April 2026, the Nil Rates Payable is based on small business rates relief being applied for by the licensee and the licensee only occupying one property for commercial purposes.  Please note, this only applies to pubs marked with an Asterix *


Frequently Asked Questions

We believe we do things differently to other pub companies. To us its quite simple – great pubs are run by great people, so we focus on ensuring we can empower you to run a successful pub business. Every licensee is different, and no two pubs are the same, so we carefully tailor the range of agreements, support and training packages we offer to give you all you need to run your own pub.

The first step is to call our recruitment team and have a chat with us. We’ll probably suggest you attend one of our recruitment events as nothing beats a face to face chat. It’s also a good idea to research the sort of pub you are interested in ahead of time, so you have a clear picture of the competition in the area and what the local community looks for in that pub.

In order to run a pub, you will need a personal license which regulates the sale of alcohol in a pub. This can be achieved through attending a one-day course, ending in a multiple-choice exam. Once you’ve passed the exam, you then need to apply to your local council, for your personal licence. Admiral can easily help you with this by offering a discounted rate. Finally, you will also need to complete PEAT training (Pre Entry Awareness Training), an online course which explains the leased and tenanted pub agreement you are about to take on.

Our default agreement is our 5 Year Tenancy Agreement with a range of support available to you throughout your agreement with Admiral. We also offer induction training, our 7 Steps to Sales Success course is a 2 day online course that will provide you with the knowledge to run a pub and get you off to a great start before you get started. In addition to this, we offer other training workshops on a wide range of topics such as Marketing, Social Media, Cellar Training along with online training including Food Hygiene, Health & Safety and lots of other related courses. There is simply training available for every subject. When you take on a pub with us, your Business Development Manager will discuss your training requirements with you and identify areas where you may benefit from additional support or training.

Rents are based on open market value, Fair Maintainable Trade (FMT) and the future trading potential of the premises. This entails an assessment of the turnover and profitability that a reasonably efficient operator would be expected to achieve, taking into account the optimum trading style for the premises and making reasonable allowances for costs. This will involve estimating the trading potential rather than just adopting the actual level of trade under the existing ownership. This method of valuation is known as “the Profits Method”.

We want to empower our licensees to get on with the day to day running of the pub, as well as giving you the knowledge that you can count on us for as much (or as little) support as you need. Our team are truly passionate about community pubs and we want to do as much as we can to help you run sustainable and profitable businesses. Our support includes but isn’t limited to the following: Commercial & Marketing Support, Food Team, Licensing, Property Help Desk, Investments, Machines and Training.

Our BDMs work hard to build strong working relationships with their licensees. Your BDM is there to help you develop your pub and can support you in many different ways. From guidance around products and pricing, planning events, marketing your pub and development and training, our BDMs are empowered to make quick decisions which will help you move forward with your business.

We are continually investing in our pubs. From transformational refurbishments to small improvements where it really counts, we run an active investment programme and are committed to improving our estate of pubs. We also are fully invested in working alongside our licensees during the investment process to bring their ideas to fruition.

Admiral operates under the tenanted and leased model whereby we as the pub company own the pub and agree to rent the premises to you via a lease or tenancy agreement. Most tenancies/leases include a negotiated supply agreement covering the purchase of all drinks categories and possibly a range of other goods and services (hence the phrase ‘tied’ pubs). The level of rent you agree to pay at your pub will be dependent upon the extent of your purchasing obligations. Our rent offers are based on a Full Tie, and hence reflects the lowest rent payable. For licensees on long term agreements, we offer free-of-tie options for certain drinks categories in exchange for an annual fee. The prices you pay for drinks purchased from Admiral are likely to be different to those on the open market. When you take on the pub your BDM will discuss rent and the tie with you.

To enter into any tenancy agreement with Admiral, you will normally have to consider the following costs:
Personal Licence fee – This is the fee for obtaining your Personal Licence which you will require if you intend to be the Designated Premises Supervisor named on the premises licence.
Fixtures and Fittings (e.g. furniture, kitchen equipment, light
fittings, carpets etc)
– These are usually valued on the day you enter the property. Whilst we prefer you to purchase the fixtures and fittings outright, there are occasions where we can provide alternative methods of purchase or may consider a rental agreement. Your BDM will discuss these options with you.
Deposit – The size of the deposit (or security bond) varies depending on the property and the commercial terms agreed but is normally the greater of a quarter’s rent or £5,000 and will be held for the duration of your agreement. In exceptional circumstances, we may allow you to pay a lower deposit and build this up over a time period.
Stock and glassware – These are purchased when you take over your pub, at an agreed valuation, from either the outgoing tenant or Admiral.
Working capital – The amount of working capital required (cash available) varies by pub, as each individual business requires different levels of funding. Your BDM will discuss this with you.
Pre Entry Awareness Training (PEAT) – This is mandatory training designed to raise awareness on the matters involved in operating a pub, from agreements, repairs and purchasing obligations. The cost of this course is £100 plus VAT.

Yes absolutely. We are always keen to encourage successful licensees to develop. Our BDMs work together with our licensees to achieve this and identify new opportunities. We also run training workshops to help you to gain the right skills, so you can take the step from running just one business to expanding with a second pub.

Admiral Taverns accept payment by Direct Debit or Open Banking (Pay by Link) only. Our Business Development Managers will discuss which method is most appropriate for you during the application process.

Keep up to date with vacancies

"*" indicates required fields

This field is for validation purposes and should be left unchanged.